Skip to main content
Construction & FAQ
Homes
Contact Us
Construction & FAQ
Homes
Contact Us
Homes Catalog
Virtual Showroom
To view more options and plans, click these links.
Titan Homes
#6
- Skyline Apex
Call for details price
Ref #:
#6
Type:
In Stock
Category:
Ranch
Description:
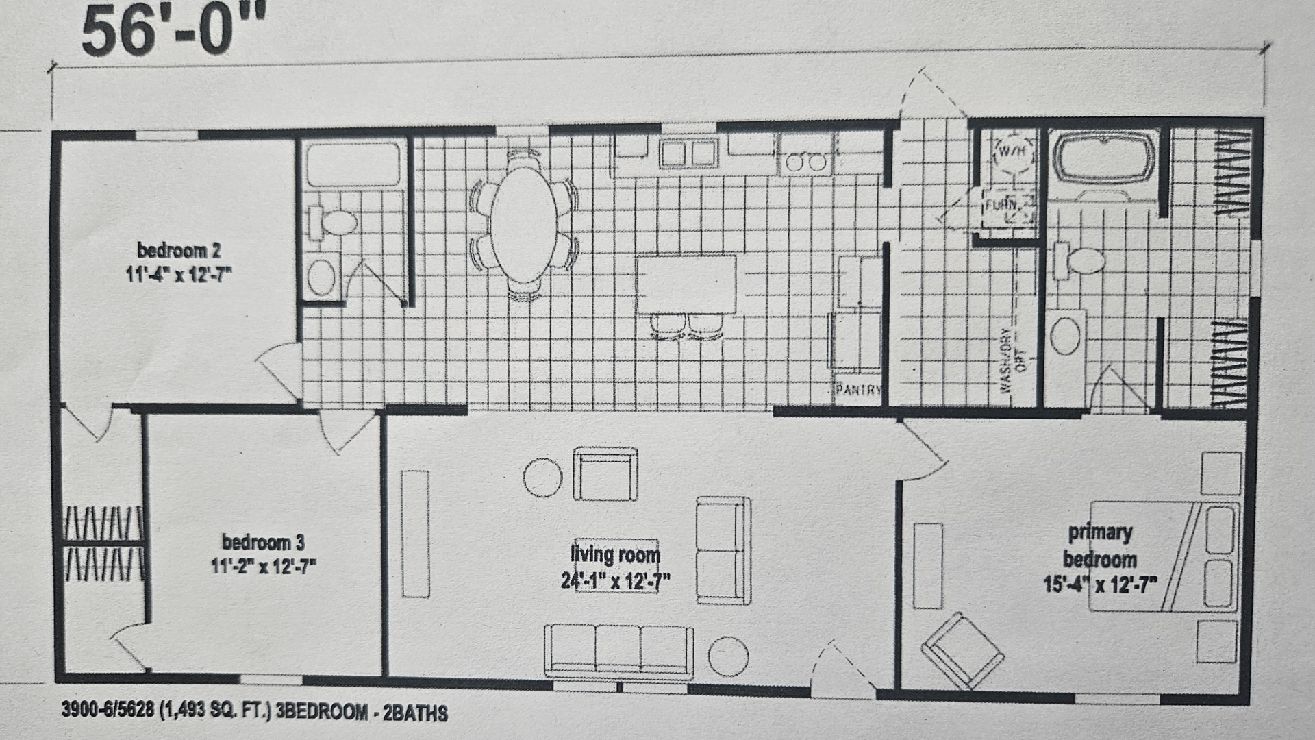
28x56 3 bedroom 2 bath Skyline manufactured home
Open the calendar
Open the calendar
I would like more information regarding the property #6, Skyline Apex
Request More Details
Add to compare list
PDF
Information
Gallery